KCN PHÚ MỸ II MỞ RỘNG
Tiện ích
-
Kết nối đến Cảng
⚓ Cảng nước sâu Cái Mép - Thị Vải: 1km - Cảng tổng hợp Phú Mỹ: 2km
-
Kết nối đến Sân bay
✈️ Sân bay Quốc tế Tân Sơn Nhất: 70km - Sân bay Quốc tế Long Thành: 35km
-
Kết nối Khác
📍 Quốc lộ 51: 1,5km - Cao tốc HCM - Long Thành: 30km
Địa điểm
🏭 Cho thuê đất Khu công nghiệp Phú Mỹ II Mở Rộng | Dịch vụ tư vấn miễn phí | SEE THE SPACE Industrial
SEE THE SPACE l STS Industrial là đơn vị tư vấn và môi giới bất động sản công nghiệp hàng đầu Việt Nam, chuyên cung cấp dịch vụ tư vấn thuê đất, nhà xưởng, kho bãi trong các khu công nghiệp trên toàn quốc.
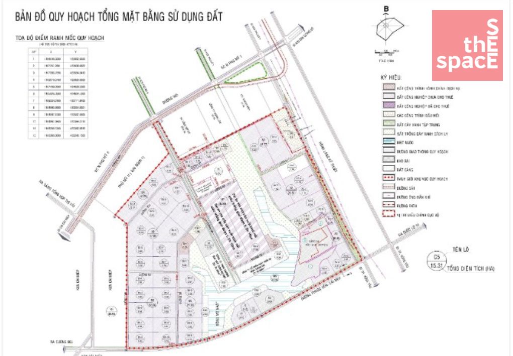
Khu công nghiệp Phú Mỹ II Mở Rộng tọa lạc tại phường Tân Phước, thị xã Phú Mỹ, tỉnh Bà Rịa – Vũng Tàu, nằm trong vùng kinh tế trọng điểm phía Nam, chỉ cách TP.HCM khoảng 70 km.
Đây là khu công nghiệp chiến lược được phát triển nhằm mở rộng không gian đầu tư, kết nối trực tiếp với KCN Phú Mỹ II hiện hữu và hệ thống cảng nước sâu Cái Mép – Thị Vải, tạo điều kiện lý tưởng cho các doanh nghiệp sản xuất, logistics và xuất nhập khẩu.
KCN được quy hoạch hiện đại, đồng bộ, cơ sở hạ tầng hoàn chỉnh, pháp lý minh bạch, phù hợp cho các ngành công nghiệp sạch, công nghiệp hỗ trợ, kho bãi, cơ khí, điện – điện tử.
Thông tin tổng quan
- Tổng diện tích quy hoạch: ~ 400 ha
- Diện tích đất công nghiệp cho thuê: ~ 246 ha
- Tỷ lệ lấp đầy hiện tại: ~75%
- Diện tích cho thuê linh hoạt: từ 5.000 m² đến 20 ha
- Thời hạn hoạt động: đến năm 2058

Hạ tầng kỹ thuật
- Giao thông:
Đường trục chính 36 m, đường nhánh 26 m, kết nối trực tiếp Quốc lộ 51, cao tốc Biên Hòa – Vũng Tàu, thuận tiện vận chuyển hàng hóa ra cảng biển. - Điện:
Nguồn cấp từ trạm biến áp 110/22kV trong khu công nghiệp và hệ thống điện quốc gia, đảm bảo cung cấp liên tục 24/7. - Nước sạch:
Lấy từ Nhà máy nước Phú Mỹ với công suất 30.000 m³/ngày đêm, đáp ứng đầy đủ nhu cầu sản xuất. - Hệ thống xử lý nước thải:
Công suất 4.000 m³/ngày đêm, đạt tiêu chuẩn QCVN 40:2011/BTNMT (cột A). - Viễn thông – Internet:
Hệ thống cáp quang tốc độ cao, dịch vụ viễn thông ổn định, kết nối toàn khu. - Pháp lý:
Giao đất có thu tiền sử dụng – Sổ đỏ 50 năm, hạ tầng hoàn thiện sẵn sàng bàn giao cho nhà đầu tư.
Vị trí và kết nối giao thông
Nhờ nằm sát trung tâm logistics Phú Mỹ và hệ thống cảng nước sâu hàng đầu Việt Nam, Phú Mỹ II Mở Rộng là điểm đến lý tưởng cho doanh nghiệp xuất khẩu và sản xuất công nghiệp quy mô lớn.
- Vị trí: Phường Tân Phước, TP. Hồ Chí Minh
- Phía Bắc: Giáp Khu công nghiệp Phú Mỹ II, đường 965 và các dự án
- Phía Đông: Giáp hành lang kỹ thuật đô thị mới Phú Mỹ
- Phía Nam: Giáp đường quy hoạch Phước Hòa - Cái Mép
- Phía Tây: Giáp Khu công nghiệp Cái Mép

Ngành nghề thu hút đầu tư
KCN Phú Mỹ II Mở Rộng tập trung thu hút các ngành nghề sạch, ít ô nhiễm, sử dụng công nghệ cao, cụ thể:
- Cơ khí chế tạo, linh kiện ô tô, máy móc công nghiệp
- Sản xuất điện – điện tử, thiết bị công nghệ cao
- Chế biến thực phẩm, hàng tiêu dùng
- Sản xuất vật liệu xây dựng, nội thất, nhựa, bao bì
- Kho bãi, logistics, trung tâm phân phối hàng hóa
- Sản xuất phân bón, thuốc bảo vệ thực vật vi sinh;
- Sản xuất giày da, dép cao cấp;
- Sản xuất Nhựa, gốm sứ, thủy tinh, Cơ khí chế tạo, lắp ráp, sửa chữa, luyện kim.
Ưu điểm nổi bật của KCN Phú Mỹ II Mở Rộng
✅ Vị trí chiến lược – gần cảng nước sâu Cái Mép – Thị Vải
✅ Cơ sở hạ tầng hoàn chỉnh, sẵn sàng bàn giao
✅ Chi phí thuê đất cạnh tranh nhất khu vực Phú Mỹ
✅ Kết nối thuận tiện cảng, cao tốc, sân bay
✅ Pháp lý rõ ràng – hỗ trợ nhanh thủ tục đầu tư
✅ Môi trường đầu tư an toàn, thân thiện, bền vững
SEE THE SPACE Industrial – Dịch vụ tư vấn cho thuê đất KCN miễn phí
Chúng tôi cam kết mang đến cho nhà đầu tư:
- 📋 Tư vấn miễn phí 100%
- 📊 Bảng giá cập nhật trực tiếp từ chủ đầu tư
- 🧭 Đề xuất vị trí tối ưu cho ngành nghề cụ thể
- ⚙️ Hỗ trợ trọn gói: khảo sát, pháp lý, đàm phán, ký hợp đồng
- 🤝 Đồng hành cùng nhà đầu tư trong suốt quá trình triển khai dự án
Liên hệ tư vấn miễn phí
📞 Hotline: 0768 999 647
📧 Email: leasing@seethespace.vn
🌐 Website: https://seethespace.vn